Skip to content
  • клеєний брус
  • зруб
  • фахверк
  • clt
  • профільований брус
  • циліндрична колода
  • каркас
  • модульні
  • проекти будинків
  • проекти лазень
  • блог
  • відгуки
logo koleo
093 59 79 579
093 59 79 579
logo koleo
  • клеєний брус
  • зруб
  • фахверк
  • clt
  • профільований брус
  • циліндрична колода
  • каркас
  • модульні
  • проекти будинків
  • проекти лазень
  • блог
  • відгуки
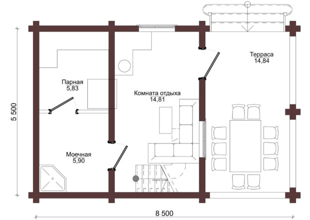
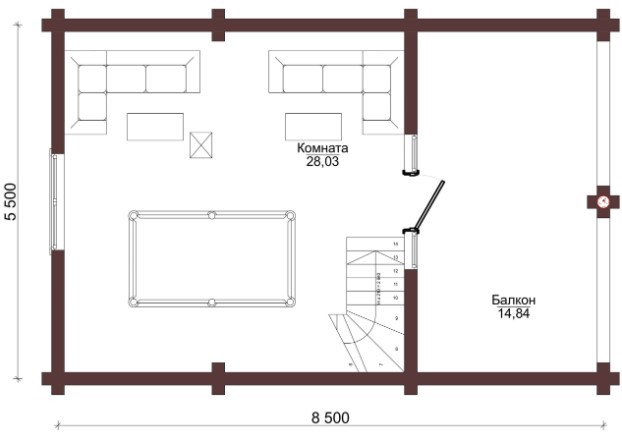
ЗРУБ/БРУС

ПРОЕКТ БАНІ "ДЕРЖЕНА"

ГАБАРИТИ: 8,5 x 5,5 м

ПЛОЩА: 63 кв. м

Замовити консультацію
  • Будівельна компанія "КОЛЕО"
Facebook Instagram
image_баня-зруб_проект_Держена_загальний-вигляд_2_деревяні-лазні-та-сауни_будівельна-компанія_Колео
image_баня-зруб_проект_Держена_загальний-вигляд_3_деревяні-лазні-та-сауни_будівельна-компанія_Колео
image_баня-зруб_проект_Держена_загальний-вигляд_4_деревяні-лазні-та-сауни_будівельна-компанія_Колео
image_баня-зруб_проект_Держена_фасад_1_деревяні-лазні-та-сауни_будівельна-компанія_Колео
image_баня-зруб_проект_Держена_фасад_2_деревяні-лазні-та-сауни_будівельна-компанія_Колео
image_баня-зруб_проект_Держена_фасад_3_деревяні-лазні-та-сауни_будівельна-компанія_Колео
image_баня-зруб_проект_Держена_фасад_4_деревяні-лазні-та-сауни_будівельна-компанія_Колео
проекти лазні
проектування бані під ключ
logo koleo логотип компанії колео

Підпишіться та спостерігайте за нами в соцмережах

contact

  • 88000 Грушевського 2ж, Ужгород
  • +38 093 59 79 579
  • koleo.sales@gmail.com

styles

  • барн
  • скандинавський
  • хай тек
  • шале
  • A-frame

information

  • будинок в кредит
  • онлайн калькулятор
  • калькулятор доставки
  • калькулятор домокомплекту
  • про нас
  • відгуки
  • вакансі
  • галерея
  • блог
  • контакти

construction

  • архітектурне проектування
  • фундамент
  • монтаж стін
  • монтаж даху
  • інженерні системи
  • оздоблення

services

  • будинки із клеєного бруса
  • будинки із профільованого бруса
  • рублений будинок
  • зруб з оциліндрованого брусу
  • фахверкові будинки
  • будинки з бруса
  • будинки із CLT
  • каркасні будинки
  • модульні будинки
  • храми та каплиці
  • лазні
  • сауни

projects

  • проекти храмів
  • проекти бань
  • проекти будинків
  • одноповерхові
  • двоповерхові
  • комплекти будинків
  • політика конфеденційності

Copyright © KOLEO