Проектирование коттеджей и сооружений из дерева под ключ
Проектирование деревянных домов
услуги архитектора
- современная эко архитектура
- индивидуальные проектные решения
- авторский надзор
АРХИТЕКТУРНЫЕ УСЛУГИ
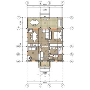
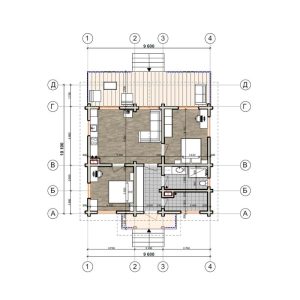
разработка планировочных решений для вашего дома или коттеджа
ЭСКИЗНЫЙ ПРОЕКТ
Дает право на получение строительного паспорта
АРХИТЕКТУРНЫЙ ПРОЕКТ
Сочетание архитектурных решений с эскизным проектом
ПРОЕКТ конструкций
Конструктивные решения
рабочий ПРОЕКТ
Сочетание конструктивных и архитектурных решений
АРХИТЕКТУРНЫЙ ОТДЕЛ КОЛЛЕО
Что мы проектируем
Плюсы проектирования с КОЛЕО
1
Помогаем уменьшить стоимость домокомплекта за счет оптимизации раскроя материала
2
Применение надежных узлов и соединений, сокращающих расходы при строительстве и риски при эксплуатации
3
Вы экономите при строительстве дома за счет известных объемов материалов и работ.
4
При заказе домокомплекта у нас зачислим стоимость проекта раздела КД
5
Расчеты нагрузок выполнены опытным инженером-проектировщиком согласно ДБН
6
Гарантия соблюдения сроков проектирования
ИМЕЯ НА РУКАХ ПРОЕКТ ВЫ ПОЛУЧАЕТЕ
Разработаем планировочные решения для вашего дома в 4 шага:
Общий контур и форма
Продумаем общий контур и форму дома с учетом нужного количества помещений и будущей архитектуры. Обсуждаем площадь, этажность и состав помещений. Изучаем сценарии жизни каждого члена семьи, особенности, привычки.
Размещение помещений
Разрабатываем план расположения комнат, типы зонирования, развязки. Разместим все необходимые помещения в соответствии с логикой зонирования, эргономикой и вашими пожеланиями.
Интерьер
Сделаем планировку каждой комнаты с учетом будущего интерьера. Размещаем мебель, сантехнику, оборудование, технику в каждой комнате с учетом будущего дизайна и потребностей заказчика.
Доработка мелочей
Доработаем мелочи, чтобы все было максимально удобно и продумано. Наносим места для зарядки робота-пылесоса, размещения модема, зарядных станций, зоны для домашних животных и т.д.
Обсудите проект планирования на бесплатной консультации
Разработка комплексного проекта для деревянного строительства
- Как посадить дом на участок
- Оптимальная площадь дома
- Перечень помещений для дома
- Где разместить гараж, навес и веранду
- Размеры и размещение кухни
- Патио и каминную зону
- Современные планировки домов
Закажите консультацию проектировщика
Планирование дома для самых лучших моментов жизни
Вы получите
Учитываем особенности вашей жизни
Зонирование пространств, расстановка мебели, места для розеток и т.д. — все это продумывается только под ваши сценарии жизни. Хочется завтракать на улице — предусмотрим просторную веранду с выходом из кухни. Необходим мастер-блок — спланируем его со спальней, ванной и гардеробной. Надоели темные помещения — сориентируем дом на южную сторону.
Убережем от ошибок
В планировке загородного дома миллион нюансов, начиная от отступов по границе участка, ориентации дома на свету и заканчивая размещением мойки на кухонном острове. Если вы никогда не делали планировку частного дома — учесть все моменты невозможно. Мы разработали множество планировочных решений и четко понимаем, что и как нужно делать, чтобы вы комфортно чувствовали себя в будущем доме.
Красивый интерьер и архитектура с нашей планировкой с нашей планировкой
Наши планировки помогут создать уникальный интерьер и оригинальную архитектуру вашего дома.
Разместим все логично и на своих местах
Кухня под левую руку, скрытые места для хранения, гардеробная с отсеком под сумки и обувь, отдельная гардеробная под верхнюю одежду — эти и еще множество других решений, которые мы реализуем в планировочном решении для вашего дома.
Уберем все лишнее и добавим нужное
Мы посоветуем от каких помещений лучше отказаться, а какие изменить, чтобы стало удобнее. Подскажем, в каких комнатах нужно увеличить площадь или высоту потолков. Наши планировочные решения «не раздувают» бюджет, а наоборот позволят сэкономить деньги на строительных и отделочных работах.
Предложим крутые идеи
Второй свет в гостиной, летающая лестница, световые фонари, проход из гаража в дом через гардеробную и еще множество современных трендов в планировке домов, которые мы готовы реализовать.
Закажите грамотное планирование деревянного дома
АРХИТЕКТУРНОЕ ПРОЕКТИРОВАНИЕ
МЫ ЦЕНИМ РЕПУТАЦИЮ И ВАШЕ ДОВЕРИЕ - СОЗДАЕМ ПРОЕКТЫ С ЗАБОТОЙ О КАЖДОМ
Проектирование деревянных домов — это творческий процесс, который требует сочетания традиций и современных технологий. Деревянные дома всегда пользовались популярностью благодаря своей экологичности, эстетике и комфорту.
Основные этапы проектирования деревянных домов:
Разработка концепции:
-
- Определение стиля (рустикальный, скандинавскийсовременный, шале, барн)
- Выбор материала (сруб, брус, CLT, каркас)
- Определение размеров и планировки дома
- Учет особенностей участка (рельеф, размеры, инсоляция)
Создание проектной документации:
-
-
- Архитектурный проект: планировка этажей, фасады, разрезы.
- Конструктивный проект: расчет несущих конструкций, крыши, фундамента.
- Инженерные разделы: водоснабжение, канализация, отопление, вентиляция, электроснабжение.
-
Выбор материалов:
-
- Древесина (сруб, брус, клееный брус): выбор породы дерева, обработка древесины.
- Изоляционные материалы: минеральная вата, эковата, пенопласт.
- Дополнительные материалы: окна, двери, кровля, фасадные материалы.
Визуализация проекта:
-
- 3D-моделирование: позволяет увидеть будущий дом еще на этапе проектирования.
Преимущества деревянных домов:
- Экологичность: Натуральные материалы, отсутствие вредных испарений.
- Энергоэффективность: Дерево имеет низкую теплопроводность, что позволяет уменьшить расходы на отопление.
- Скорость строительства: Возможность возведения дома за короткий срок.
- Эстетичный внешний вид: Деревянные дома обладают неповторимым шармом и теплотой.
- Благоприятный микроклимат: Дерево «дышит», поддерживая оптимальную влажность в помещении.
Проектирование деревянной бани — это творческий процесс — это творческий процесс, который требует сочетания традиций и современных технологий. Деревянная баня — это не просто место для отдыха, а целая культура, которая передается из поколения в поколение.
Основные этапы проектирования:
- Разработка концепции, разработка концепции: Определение стиля (рустикальный, скандинавский, современный), размеров, расположения на участке, выбор материалов.
- Планировка: Разработка планировки помещений: парилка, моечная, комната отдыха, предбанник.
- Дизайн интерьера: Выбор отделочных материалов, мебели, освещения.
- Инженерные расчеты: Расчет отопления, вентиляции, водоснабжения, канализации.
- Рабочий проект: Разработка детальных чертежей для строительства.
Основные элементы деревянной бани:
- Парилка: Сердце бани. Отделка из натурального дерева, печь, полки.
- Мойка: Место для ополаскивания после парилки.
- Отдых: Комната для отдыха с мягкой мебелью и столом.
- Предбанник: Служит для переодевания и хранения вещей.
Материалы для строительства:
- Дерево: Самый популярный материал для бани. Используют различные породы дерева: сосна, осина, липа.
- Камень: Используется для облицовки печи, пола в моечной.
- Стекло: Большие окна обеспечивают естественное освещение и создают ощущение простора.
Стилистические решения:
- Рустикальный стиль: Использование грубых текстур, кованых элементов, камина.
- Скандинавский стиль: Минимализм, светлые тона, натуральные материалы.
- Современный стиль: Простые линии, большие окна, использование металла и стекла.
Важные аспекты при проектировании:
- Вентиляция: Правильная вентиляция обеспечивает отвод влаги и создает комфортный микроклимат.
- Отопление: Выбор эффективного отопительного оборудования (дровяная печь, электрическая печь).
- Изоляция: Хорошая теплоизоляция позволит сохранить тепло в парилке.
- Безопасность: Соблюдение правил пожарной безопасности.
Услуги архитектора:
- Разработка индивидуального проекта: С учетом ваших пожеланий и особенностей участка.
- Выбор материалов: Помощь в выборе оптимальных материалов для строительства.
- Авторский надзор: Контроль за выполнением проекта.
- Оформление разрешительной документации.
Преимущества деревянной бани:
- Экологичность: Натуральные материалы создают здоровый микроклимат.
- Эстетичный вид: Деревянная баня — это всегда стильно и красиво.
- Лечебные свойства: Дерево выделяет фитонциды, которые очищают воздух.
- Долговечность: При правильном уходе деревянная баня прослужит много лет.
Желаете узнать больше о проектировании деревянных бань?

Проектирование СПА-центра является сложным процессом, который требует комплексного подхода и учета многих факторов. От успешного проектирования зависит не только внешний вид заведения, но и его функциональность, комфорт и прибыльность. Основными аспектами проектирования СПА-центра являются:
- Концепция: четко определить концепцию своего СПА-центра. Это может быть классический спа-центр, хамам, фитнес-центр или комбинация этих направлений;
- Целевая аудитория: определить, кто будет вашими клиентами — молодежь, семьи, пожилые люди. Это будет определять выбор услуг, дизайн и атмосферу;
- Расположение: выбрать место для СПА-центра с учетом транспортной доступности, наличия парковки и других факторов.
- Планировка: разработка детального плана расположения всех зон: рецепция, процедурные кабинеты, бассейн, сауна, зона отдыха.
- Дизайн: создание атмосферы релакса и спокойствия с помощью выбора цветов, материалов, освещения.
- Оборудование: подбор необходимого оборудования для проведения процедур: массажные столы, ванны, сауны, парогенераторы и т.д.
- Инженерные системы: проектирование эффективных систем вентиляции, кондиционирования, водоснабжения и канализации.
Проектирование деревянных бутик-отелей — это искусство сочетания традиций и современности, комфорта и эстетики. Вот основные направления, которые стоит учитывать при разработке такого проекта:
- Концепция и стиль:
- Эко-стиль: Использование натуральных материалов, таких как дерево, камень, лен. Создание атмосферы близости к природе.
- Рустикальный стиль: Упор на грубые текстуры, кованые элементы, камин.
- Скандинавский стиль: Минимализм, светлые тона, натуральное освещение.
- Шале: Альпийский стиль с использованием дерева, камня и кожи.
- Современный стиль: Минималистичный дизайн, большие панорамные окна, открытое пространство.
- Планирование:
- Зональность: Четкое разграничение зон: рецепция, рестораны, бары, спа-центр, номера.
- Комфорт: Каждый номер должен быть оборудован всем необходимым для комфортного отдыха.
- Функциональность: Планировка должна быть удобной для персонала и гостей.
- Эргономика: Использование пространства должно быть максимально эффективным.
- Материалы:
- Дерево: Основной материал для строительства и отделки.
- Камень: Используется для оформления каминов, стен, пола.
- Текстиль: Натуральные ткани (лен, хлопок) для создания уютной атмосферы.
- Металл: Для создания контрастов и акцентов.
- Освещение:
- Естественное освещение: Максимальное использование естественного света благодаря большим окнам.
- Искусственное освещение: Мягкий, рассеянный свет для создания атмосферы релакса.
- Акцентное освещение акцентное освещение: Выделение отдельных зон и элементов интерьера.
- Декор:
- Искусство: Картины, скульптуры, текстиль с национальными мотивами.
- Растения: Живые растения добавят свежести и естественности.
- Элементы декора: Свечи, вазы, текстильные изделия.
- Технологии:
- Система «умный дом»: Автоматизация освещения, отопления, кондиционирования.
- Мультимедийные системы: Телевизоры, музыкальные системы, интернет.
- Системы безопасности: Видеонаблюдение, охранная сигнализация.
- Экологичность:
- Использование экологичных материалов: Древесина с сертификатами, натуральные масла.
- Энергосбережение: Использование солнечных батарей, тепловых насосов.
- Сортировка мусора: Внедрение системы сортировки мусора.
- Дополнительные услуги:
- Спа-центр: Сауны, бассейны, массажные кабинеты.
- Ресторан: Здоровое питание, местные продукты.
- Активный отдых: Прогулки на природе, велосипедные прогулки, конные прогулки.
Сотрудничество с профессионалами: Для создания уникального и комфортного бутик-отеля необходимо привлечь команду профессионалов: архитекторов, дизайнеров, инженеров, строителей.
Использование 3D-визуализации: С помощью 3D-моделирования можно создать реалистичное изображение будущего отеля и внести необходимые коррективы на этапе проектирования.
Следуя этим рекомендациям, вы сможете создать уникальный деревянный бутик-отель, который станет популярным местом отдыха для ваших гостей.

Проектирование зданий для гольф-клубов — это сложный процесс, который требует сочетания функциональности, эстетики и гармонии с окружающим ландшафтом. Здания гольф-клуба должны не только обеспечивать комфорт для членов клуба, но и создавать атмосферу престижности и эксклюзивности.
Основные функциональные зоны гольф-клуба:
- Клубный дом: Центральное место, где проходят социальные мероприятия, расположены рестораны, бары, библиотеки и другие зоны отдыха.
- Раздевалки и душевые: Комфортабельные помещения для переодевания и гигиенических процедур.
- Фитнес-центр: Зал для тренировок, бассейн, сауна.
- Профессиональный магазин: Продажа гольф-инвентаря и экипировки.
- Административные помещения: Офисы, конференц-залы, конференц-залы.
- Детский клуб: Для детей посетителей.
- Конференц-залы: Для проведения деловых встреч.
Архитектурные решения:
- Интеграция в ландшафт: Здания должны гармонично вписываться в окружающий ландшафт, не нарушая естественную красоту поля для гольфа.
- Использование натуральных материалов: Камень, дерево, стекло — создают атмосферу естественности и экологичности.
- Большие панорамные окна: Обеспечивают великолепный вид на поле для гольфа и создают ощущение простора.
- Функциональное зонирование: Четкое разделение зон для игры, отдыха и административных нужд.
- Современные технологии: Использование энергоэффективных систем отопления и вентиляции, систем «умный дом».
Важные аспекты проектирования:
- Доступность: Здания должны быть доступными для людей с ограниченными возможностями.
- Безопасность: Соблюдение всех норм пожарной безопасности и безопасности эксплуатации.
- Комфорт: Создание комфортной среды для отдыха и работы.
- Энергоэффективность: Использование современных технологий для уменьшения потребления энергии.
Проектирование гольф-клуба — это сложный и многогранный процесс, который требует индивидуального подхода к каждому проекту. При разработке проекта необходимо учитывать множество факторов, таких как климат, рельеф местности, пожелания заказчика и бюджет.
Проектирование религиозных сооружений — это особый вид архитектурной деятельности, требующий глубокого понимания религиозных догматов, символики и традиций. Каждая религия имеет свои уникальные требования к архитектуре храмов, синагог, мечетей и других культовых сооружений.
Основные требования к проектированию религиозных сооружений:
- Религиозные каноны: Проект должен соответствовать канонам конкретной религии, учитывать ее символику и традиции.
- Функциональность: Здание должно обеспечивать все необходимые для проведения богослужений и других религиозных обрядов функции.
- Эстетика: Архитектура храма должна вызывать чувство благоговения и возвышения.
- Символика: Каждый элемент здания — от формы купола до витражей — несет определенный символический смысл.
- Акустика: Особенно важна для храмов, где поют хоры и читаются молитвы.
- Материалы: Выбор материалов должен соответствовать традициям и символике религии.
Типичные элементы религиозных сооружений:
- Центральный неф: Главное помещение для проведения богослужений.
- Алтарь: Место для совершения обрядов.
- Иконостас: Разделяет алтарь и неф.
- Колокольня: Для размещения колоколов.
- Крипта: Подземное помещение для захоронения священников или выдающихся деятелей церкви.
Примеры религиозных сооружений разных конфессий:
- Православные храмы: Характерны большие купола, богатый декор, использование золотого цвета.
- Католические костелы: Готические соборы с высокими потолками, большими окнами и стрельчатыми арками.
- Мечети: Минареты, купола, ковры, отсутствие изображений людей и животных.
- Синагоги: Арки, своды, большие окна, отдельные помещения для мужчин и женщин.
Современные тенденции в проектировании религиозных сооружений:
- Минимализм: Простые формы, натуральные материалы, большие окна.
- Экологичность: Использование энергоэффективных технологий, натуральных материалов.
- Инклюзивность: Создание доступной среды для людей с ограниченными возможностями.
- Мультифункциональность: Комбинирование религиозных функций с общественными.
Вызовы при проектировании религиозных сооружений:
- Сохранение традиций: Сочетание традиционной архитектуры с современными требованиями.
- Религиозные требования: Соблюдение канонов каждой конкретной религии.
- Строительные нормы: Соблюдение строительных норм и правил.
- Бюджетные ограничения: Поиск оптимального решения в рамках утвержденного бюджета.
Проектирование религиозных сооружений — это ответственная и творческая задача, которая требует глубоких знаний в области архитектуры, религиоведения и инженерии.
Проектирование пансионата — это сложный процесс, который требует комплексного подхода и учета многих факторов. От успешного проектирования зависит не только внешний вид заведения, но и его функциональность, комфорт и прибыльность.
Ключевые аспекты проектирования пансионата:
- Концепция: Четко определите концепцию вашего пансионата. Это может быть семейный отдых, оздоровительный туризм, бизнес-туризм и тому подобное.
- Месторасположение: Выберите место с красивыми видами, удобной транспортной развязкой и развитой инфраструктурой.
- Планировка: Разработайте детальный план расположения номеров, ресторана, зон отдыха, спа-центра и других помещений.
- Дизайн: Создайте атмосферу уюта и комфорта с помощью выбора цветов, материалов, мебели.
- Оборудование: Подберите необходимое оборудование для кухни, прачечной, бассейна, сауны и т.д.
- Инженерные системы: Обеспечьте эффективную работу систем отопления, вентиляции, кондиционирования, водоснабжения и канализации.
- Безопасность: Соблюдайте все нормы пожарной безопасности и безопасности эксплуатации.
Типы пансионатов и их особенности:
- Пансионаты для пожилых людей: Акцент на комфорте, безопасности, наличии медицинского персонала.
- Семейные пансионаты: Зоны для детей, бассейны, спортивные площадки.
- Спа-пансионаты: Акцент на оздоровительных процедурах, наличии спа-центра, бассейна, сауны.
- Бзнес-пансионаты: Комфортабельные номера, конференц-залы, бизнес-центр.
Современные тенденции в проектировании пансионатов:
- Экологичность: Использование природных материалов, энергосберегающих технологий.
- Индивидуальность: Создание уникального дизайна для каждого пансионата.
- Технологии: Внедрение инновационных технологий, таких как «умный дом».
- Доступность: Создание комфортной среды для людей с ограниченными возможностями.
Вызовы при проектировании пансионатов:
- Выбор места: Выбор оптимального места с учетом климатических условий, инфраструктуры и природных ландшафтов.
- Нормативная база: Соблюдение строительных норм и правил.
- Бюджет: Оптимизация затрат при сохранении качества.
- Конкуренция: Создание уникального предложения для привлечения клиентов.
Услуги архитектора: создание уникального ресторана: создание уникального ресторана
Проектирование ресторана — это сложный процесс, который требует комплексного подхода и учета многих факторов. От успешного проектирования зависит не только внешний вид заведения, но и его функциональность, комфорт и прибыльность.
Основные этапы проектирования ресторана:
- Разработка концепции: Определение стиля, кухни, целевой аудитории.
- Планировка: Разработка планировки помещения с учетом функциональных зон (зал, бар, кухня, санузлы).
- Дизайн интерьера: Выбор цветов, материалов, мебели, освещения.
- Проектирование инженерных систем: Вентиляция, кондиционирование, водоснабжение, канализация, электроснабжение.
- Оформление разрешительной документации.
Важные аспекты проектирования ресторана:
- Функциональность: Каждая зона ресторана должна быть максимально функциональной и удобной для посетителей и персонала.
- Эстетика: Интерьер должен соответствовать концепции ресторана и создавать приятную атмосферу.
- Эргономика: Размещение мебели и оборудования должно быть удобным для посетителей и персонала.
- Безопасность: Соблюдение всех норм пожарной безопасности и санитарных норм.
- Акустика: Обеспечение комфортной звуковой среды.
Стилистические решения для ресторанов:
- Классический стиль: Использование натуральных материалов, элегантной мебели, пастельных тонов.
- Современный стиль: Минималистичный дизайн, использование металла, стекла, бетона, открытая кухня.
- Лофт: Использование кирпичных стен, открытых коммуникаций, металлических элементов.
- Эко-стиль: Использование натуральных материалов, живых растений, энергосберегающих технологий.
Услуги архитектора:
- Разработка концепции ресторана: Создание уникального образа ресторана.
- Создание проектной документации: Разработка планировки, дизайн-проекта, рабочих чертежей.
- Авторский надзор: Контроль за выполнением проекта.
- Подбор материалов и оборудования.
- Сотрудничество с другими специалистами: Строителями, дизайнерами интерьера, инженерами.
Почему стоит обратиться к профессиональному архитектору?
- Индивидуальный подход: Проект будет разработан специально под ваши потребности и пожелания.
- Опыт и знания: Архитектор поможет вам в выборе оптимальных решений.
- Экономия времени и средств: Профессиональный проект поможет избежать ошибок и переделок.
- Гарантия качества: Проект будет выполнен в соответствии со всеми нормами и стандартами.
Хотите узнать больше о проектировании ресторанов? Обратитесь к нам, и мы поможем вам создать уникальное и успешное заведение!
Конструктивные решения и архитектурная планировка конных клубов: детальное описание
Проектирование конных клубов — это комплексная задача, которая требует сочетания функциональности, эстетики и безопасности. При разработке проекта необходимо учитывать специфические потребности лошадей и всадников, а также особенности участка.
Основные функциональные зоны конного клуба:
- Конюшни: Место для содержания лошадей. Они должны быть просторными, хорошо вентилируемыми, с достаточным освещением и легким доступом к воде.
- Манеж: Закрытое помещение для тренировок при любой погоде.
- Плац: Открытое поле для верховой езды.
- Карьер: Специализированное поле для преодоления препятствий.
- Административный корпус: Офисы, раздевалки, душевые, кафе.
- Склады: Для хранения корма, инвентаря и оборудования.
- Аптека: Для оказания первой помощи животным.
Конструктивные решения:
- Материалы: Преимущественно используются натуральные материалы: дерево, камень, кирпич. Они создают благоприятный микроклимат для лошадей.
- Вентиляция: Системы вентиляции должны обеспечивать постоянный приток свежего воздуха и удаление аммиака.
- Освещение: Большие окна обеспечивают естественное освещение. Искусственное освещение должно быть мягким и рассеянным.
- Отопление: Для конюшен и манежей необходима система отопления, которая будет поддерживать оптимальную температуру в холодное время года.
Архитектурное планирование:
- Интеграция в ландшафт: Здания должны гармонично вписываться в окружающий ландшафт.
- Удобная планировка: Все зоны должны быть расположены таким образом, чтобы обеспечить удобный доступ и минимизировать перемещение людей и лошадей.
- Безопасность: Доступ к конюшням и манежу должен быть ограничен для посторонних лиц.
- Эстетика: Здания должны иметь привлекательный внешний вид.
Современные тенденции в проектировании конных клубов:
- Экологичность: Использование энергосберегающих технологий, натуральных материалов.
- Инновации: Применение современных материалов и технологий для создания комфортных условий для лошадей и людей.
- Мультифункциональность: Помимо основных функций, конные клубы могут включать отели, рестораны, спа-центры.
Примеры планирования конных клубов:
- Линейная планировка: Конюшни расположены в одну линию вдоль манежа.
- Радиальная планировка: Конюшни расположены радиально от центрального корпуса.
- Комплексная планировка: Объединение всех зон в единый комплекс.
Выбор места для конного клуба:
- Доступность: Хорошая транспортная доступность для посетителей.
- Наличие инженерных коммуникаций: Вода, электричество, канализация.
- Экологичность: Отсутствие промышленных предприятий поблизости.
- Ландшафт: Ровный участок земли, желательно с легким уклоном для отвода воды.
Дополнительные факторы:
- Нормативная база: Соблюдение строительных норм и правил, ветеринарных требований.
- Бюджет: Выбор оптимальных решений с учетом бюджета.
- Пожелания заказчика: Учет индивидуальных пожеланий заказчика относительно стиля, функциональности и других аспектов.
Проектирование конного клуба — это сложный процесс, который требует индивидуального подхода к каждому проекту. Привлечение опытных специалистов поможет создать комфортное и функциональное пространство для лошадей и людей.

Реализация архитектурной концепции для ретрит-центров: создание оазиса спокойствия и гармонии
Реализация архитектурной концепции для ретрит-центра — это сложный процесс, который требует сочетания эстетики, функциональности и создания атмосферы, способствующей отдыху и самопознанию.
Основные аспекты проектирования ретрит-центра:
- Расположение: Выбор места с живописными пейзажами, подальше от городской суеты, с доступом к природным ресурсам (лес, озеро, гора).
- Концепция: Четко определенная концепция ретрита, которая будет определять стиль архитектуры, выбор материалов и спектр услуг.
- Планирование: Разработка функционального плана, включающего зоны для медитации, йоги, массажа, питания, отдыха.
- Дизайн: Создание атмосферы спокойствия и гармонии с помощью натуральных материалов, мягкого освещения, растительности.
- Инженерные системы: Обеспечение комфортного микроклимата, эффективной вентиляции и очистки воздуха.
- Ландшафтный дизайн: Создание гармоничного окружения с использованием природных материалов и растений.
Примеры архитектурных стилей для ретрит-центров:
- Минимализм: Простые линии, натуральные материалы, большие окна, обеспечивающие максимальное проникновение естественного света.
- Рустикальный стиль: Использование природных материалов (дерево, камень), грубых текстур, создание атмосферы уюта.
- Японский стиль: Спокойные цвета, использование натуральных материалов, лаконичные формы, сады из камней и воды.
- Эко-стиль: Использование экологически чистых материалов, солнечные батареи, системы сбора дождевой воды.
Необходимые функциональные зоны ретрит-центра:
- Зона для медитации: Тихое, спокойное место с мягким освещением и натуральными материалами.
- Йога-зал: Просторный зал с высокими потолками и большими окнами.
- Массажные кабинеты: Уютные комнаты для проведения различных видов массажа.
- Бассейн: Внутренний или открытый бассейн с теплой водой для релаксации.
- Сауна или баня: Для очищения тела и духа.
- Ресторан или кафе: Для здорового питания.
- Библиотека: Место для чтения и саморазвития.
Важные аспекты при проектировании ретрит-центра:
- Уединенность: Каждый посетитель должен иметь собственное пространство для отдыха и релаксации.
- Комфорт: Все помещения должны быть оборудованы удобной мебелью и иметь приятную атмосферу.
- Безопасность: Соблюдение всех норм пожарной безопасности и безопасности эксплуатации.
- Энергоэффективность: Использование энергосберегающих технологий.
Реализация проекта ретрит-центра — это сложный и ответственный процесс, который требует комплексного подхода. Привлечение опытных специалистов поможет создать уникальное место для отдыха и оздоровления.
Хотите узнать больше о каком-то конкретном аспекте проектирования ретрит-центров?
Основные функциональные зоны яхт-клуба:
- Причал: Главное сооружение яхт-клуба, предназначенное для стоянки яхт. Он может быть плавающим или стационарным.
- Клубный дом: Центральное место, где проходят социальные мероприятия, расположены рестораны, бары, библиотеки и другие зоны отдыха.
- Раздевалки и душевые: Комфортабельные помещения для переодевания и гигиенических процедур для членов клуба и гостей.
- Склады: Для хранения инвентаря, оборудования для яхт и лодок.
- Сервисный центр: Для проведения технического обслуживания яхт.
- Гостиница (опционально): Для размещения гостей.
Архитектурные решения:
- Интеграция в ландшафт: Здания должны гармонично вписываться в окружающий ландшафт, подчеркивая красоту водного пространства.
- Использование натуральных материалов: Камень, дерево, стекло создают атмосферу естественности и экологичности.
- Большие панорамные окна: Обеспечивают великолепный вид на воду и создают ощущение простора.
- Функциональное зонирование: Четкое разделение зон для яхт, отдыха и административных нужд.
- Современные технологии: Использование энергоэффективных систем отопления и вентиляции, систем «умный дом».
Стилистические решения:
- Морской стиль: Использование синих и белых цветов, декоративных элементов в виде якорей, штурвалов, штурвалов.
- Современный стиль: Минималистичный дизайн, большие панорамные окна, использование металла и стекла.
- Рустикальный стиль: Использование натуральных материалов, таких как дерево и камень, создание атмосферы уюта.
Важные аспекты при проектировании яхт-клуба:
- Безопасность: Соблюдение всех норм пожарной безопасности и безопасности на воде.
- Комфорт: Создание комфортной среды для отдыха и работы.
- Экологичность: Использование экологически чистых материалов и технологий.
- Доступность: Здания должны быть доступными для людей с ограниченными возможностями.
Дополнительные элементы яхт-клуба:
- Бассейн: Для отдыха и тренировок.
- Спа-центр: Для релаксации и оздоровления.
- Ресторан: Для проведения банкетов и других мероприятий.
- Детская площадка: Для отдыха детей.
- Спортзал: Для поддержания физической формы.
Вызовы при проектировании яхт-клуба:
- Влияние природных факторов: Ветер, влажность, солнечная радиация.
- Специфика водного транспорта: Необходимость обеспечения безопасной стоянки яхт.
- Нормативная база: Соблюдение строительных норм и правил, норм безопасности на водных объектах.
- Бюджет: Оптимизация затрат при сохранении качества.
Проектирование яхт-клуба — это сложный и многогранный процесс, который требует индивидуального подхода к каждому проекту.
Желаете узнать больше о каком-то конкретном аспекте проектирования яхт-клубов?
узнать стоимость проектирования
FAQ
Архитектура — это не просто совокупность стен и крыши, это среда, которая нас окружает и значительно влияет на наше восприятие, эмоции и поведение.
Как здания влияют на наше психологическое состояние?
- Пространство и эмоции: Открытые, светлые пространства вызывают ощущение свободы и позитива, тогда как замкнутые и темные могут вызывать тревогу и дискомфорт.
- Форма и линии: Острые углы и вертикальные линии создают ощущение напряжения, а плавные изгибы и горизонтальные линии — спокойствия и расслабления.
- Материалы: Использование натуральных материалов, таких как дерево и камень, создает ощущение тепла и уюта, тогда как холодный металл и бетон могут вызвать ощущение отчуждения.
- Цвет: Разные цвета вызывают разные эмоции: теплые цвета (красный, оранжевый, желтый) возбуждают, а холодные (синий, зеленый, фиолетовый) успокаивают.
- Свет: Естественное освещение положительно влияет на наше настроение и работоспособность. Недостаток света может вызвать депрессию и апатию.
Примеры влияния архитектуры на человека:
- Школы: Просторные, светлые классы с большими окнами способствуют лучшей концентрации и успеваемости учащихся.
- Офисы: Дизайн офиса может влиять на продуктивность сотрудников. Открытые пространства способствуют сотрудничеству, а отдельные кабинеты — концентрации.
- Медицинские учреждения: Теплая цветовая гамма, мягкое освещение и натуральные материалы помогают пациентам чувствовать себя более комфортно и расслабленно.
- Жилые дома: Планировка дома, выбор материалов и цветовая гамма влияют на наше настроение, отношения с близкими и качество сна.
Исторические примеры:
- Готические соборы: Стрельчатые арки и высокие потолки создавали ощущение возвышенности и духовности.
- Древнегреческие храмы: Пропорциональные формы и гармоничные линии вызывали ощущение спокойствия и умиротворения.
- Современные небоскребы: Монументальные здания символизируют силу и власть, но могут вызывать чувство подавленности у некоторых людей.
Важность архитектуры для человека
Архитектура — это не просто физическое пространство, это отражение нашей культуры, истории и ценностей. Она формирует наше восприятие мира и влияет на наше поведение. Поэтому важно создавать архитектуру, которая будет способствовать нашему благополучию и развитию.
Выводы
Архитектура — это мощный инструмент, который может быть использован для создания среды, способствующей нашему физическому и психологическому здоровью. Понимая, как архитектура влияет на нас, мы можем сознательно создавать пространства, которые будут нас вдохновлять и поддерживать.
Цвет — это мощный инструмент, который архитекторы используют для создания определенных атмосфер и эмоций в пространстве. Каждый цвет имеет свою энергетику и способен влиять на наше настроение, поведение и даже физиологические реакции.
Как цвета влияют на нас?
- Теплые цвета (красный, оранжевый, желтый): Способствуют активности, стимулируют аппетит, вызывают ощущение тепла и уюта. Однако в большом количестве могут раздражать и вызывать агрессию.
- Холодные цвета (синий, зеленый, фиолетовый): Способствуют расслаблению, успокаивают, создают ощущение прохлады и спокойствия. Однако в большом количестве могут вызывать ощущение холода и отстраненности.
- Нейтральные цвета (белый, черный, серый): Создают фон, на котором яркие цвета выглядят более выразительно. Белый цвет ассоциируется с чистотой и свежестью, черный — с элегантностью и таинственностью, серый — со стабильностью и нейтральностью.
Применение цвета в архитектуре:
- Жилые помещения:
- Спальня: Спокойные пастельные тона (голубой, зеленый, лавандовый) способствуют расслаблению и сну.
- Кухня: Теплые цвета (желтый, оранжевый) стимулируют аппетит и создают ощущение тепла.
- Гостиная комната: Нейтральные цвета создают универсальный фон, который можно дополнить яркими акцентами.
- Публичные пространства:
- Офисы: Синий цвет способствует концентрации, зеленый — повышает продуктивность.
- Отели: Теплые цвета создают атмосферу уюта и гостеприимства.
- Медицинские учреждения: Спокойные пастельные тона способствуют расслаблению пациентов.
Важные факторы при выборе цвета:
- Культурные ассоциации: Цвета могут иметь разное значение в разных культурах.
- Освещение: Цвет может выглядеть по-разному при разном освещении.
- Размер помещения: Темные цвета могут визуально уменьшить пространство, а светлые — увеличить.
Примеры:
- Красный цвет в ресторанах стимулирует аппетит и создает атмосферу тепла и уюта.
- Синий цвет в спальнях способствует расслаблению и лучшему сну.
- Зеленый цвет в офисах повышает продуктивность и снижает уровень стресса.
Выводы
Правильное использование цвета в архитектуре может значительно улучшить наше самочувствие и продуктивность. Понимание психологии цвета поможет создать комфортные и функциональные пространства, которые будут соответствовать нашим потребностям.
Форма здания — это не просто эстетический элемент, а мощный инструмент, который может влиять на наше восприятие, эмоции и даже физическое здоровье. Различные геометрические формы несут в себе разную энергетику и способны вызывать у нас определенные ощущения.
Психологическое воздействие геометрических форм
- Квадрат: Символизирует стабильность, равновесие и порядок. Квадратные комнаты способствуют концентрации и продуктивности.
- Прямоугольник: Также ассоциируется со стабильностью, но имеет более динамичный характер. Подходит для рабочих кабинетов и библиотек.
- Круг: Символизирует единство, целостность и бесконечность. Круглые комнаты создают ощущение уюта и безопасности.
- Треугольник: Символизирует динамику, рост и изменения. Острые углы треугольника могут вызвать ощущение напряжения и тревоги, поэтому их следует использовать с осторожностью.
- Овал: Объединяет в себе стабильность квадрата и динамику круга. Способствует творчеству и общению.
Влияние формы на энергетику пространства
- Углы: Острые углы создают негативную энергетику, которая может влиять на наше самочувствие. Их следует смягчать с помощью растений, мебели или других элементов декора.
- Кривые линии: Способствуют свободному движению энергии и создают ощущение покоя и гармонии.
- Центр комнаты: Центр комнаты считается ее энергетическим центром. Важно, чтобы в этом месте не было препятствий и негативных влияний.
Примеры влияния формы в архитектуре
- Готические соборы: Высокие острые арки и стрельчатые окна создают ощущение возвышения и духовной связи.
- Японские дома: Минималистичный дизайн и использование природных материалов способствуют спокойствию и гармонии с природой.
- Современные офисные здания: Часто имеют открытые пространства и большие окна, что способствует сотрудничеству и креативности.
Как использовать знания о формах в интерьере
- Выбор мебели: Форма мебели также влияет на атмосферу в комнате. Мягкие округлые формы создают уют, а строгие геометрические формы — дисциплину.
- Размещение мебели: Расположение мебели в пространстве должно быть гармоничным и не создавать ощущение скованности.
- Использование декора: Декоративные элементы могут смягчить острые углы и создать более приятную атмосферу.
Выводы
Форма зданий — это мощный инструмент, который может влиять на нашу жизнь. Выбирая форму для своего дома или оформляя интерьер, стоит учитывать не только эстетические аспекты, но и психологическое воздействие различных форм.
При расчете стоимости проекта мы не ограничиваемся количеством квадратных метров — гораздо важнее учитывать особенности участка. Например, проектирование дома на склоне требует более сложной работы, чем на ровной местности. Важен также объем проекта, глубина его проработки и сроки, которые клиент готов выделить на проектирование. Если нет спешки, мы всегда готовы предложить варианты, которые помогут снизить стоимость.
Мы уделяем особое внимание качеству и проработке всех деталей, поэтому сроки проектирования могут быть больше, чем в среднем по рынку. Полный проект, включая эскизные, рабочие и инженерные решения, обычно занимает около 2 месяцев. На разработку эскиза может уйти от двух недель, в зависимости от поиска оптимальных вариантов и скорости взаимодействия с клиентом. Мы тщательно согласовываем все этапы, начиная с планировки комнат и заканчивая выбором материалов и инженерного оборудования.
Позвоните нам по указанному номеру, и мы с радостью обсудим все детали. На первом этапе вы получите ответы на большинство своих вопросов.
Так, проект включает детализированный количественный состав всех материалов и оборудования, которые будут использованы при строительстве: бетон, арматура, отделочные материалы и многое другое. Все, что указано в проекте, уже просчитано в объемах.
Так, мы предлагаем четыре варианта комплектации проекта, отличающиеся по цене и срокам. Один из них — эскиз намерений застройки, который мы разрабатываем с учетом всех важных аспектов. Это не просто визуальные изображения, а тщательно продуманное архитектурное решение, согласованное с конструкторами и инженерами.
Да, мы выполняем рабочие проекты, если эскизный проект разработан не нами.
Перед встречей на участке мы предварительно обсуждаем задачи, ориентируем по срокам и стоимости проекта и отвечаем на вопросы по телефону. Если сотрудничество возможно, мы выезжаем на объект. Выезд на участок — это важный этап проектирования, который помогает учесть все детали. Присутствие клиента на участке желательно, но если это невозможно, мы организуем видеоконференцию на месте.
Есть вопросы?
Ознакомьтесь с ответами на вопросы относительно строительства, которые нам часто задают.
Если вы все же не получили ответа на ваш вопрос, обращайтесь, попробую быть полезным.
